設計方案
武漢菲斯曼地暖安裝-武漢星海虹城地暖(73平方采暖面積)
作者: 添加時間:2018-8-1 6:06:07 瀏覽:
武漢星海虹城地暖設計方案-德國原裝進口菲斯曼24KW壁掛爐+意大利gaea分集水器+喬治費歇爾PB地暖管
設計要求:傳統(tǒng)濕式水地暖、采分室智能溫控,地暖管采用瑞士GF.PB地暖管
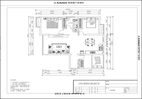
地暖管:采暖DN16喬治PB水暖管,設計間距為200mm,一共為五個回路。采暖面積一共為76平方。餐廳管路長:56m;客廳管路長:56m;房間管路長分別為:51m,54m,58m;
分集水器控制部分:采用5路分集水器+曼瑞德5路電動執(zhí)行器。
溫控器:采用德國曼瑞德可編程溫控器4個,分別放置于每一個房間,客餐廳共用一個。

裝修布置圖

暖氣設計圖紙
